Apartamento T2 DUPLEX, Aveiro, Aveiro
325.000 €
REF: 2131
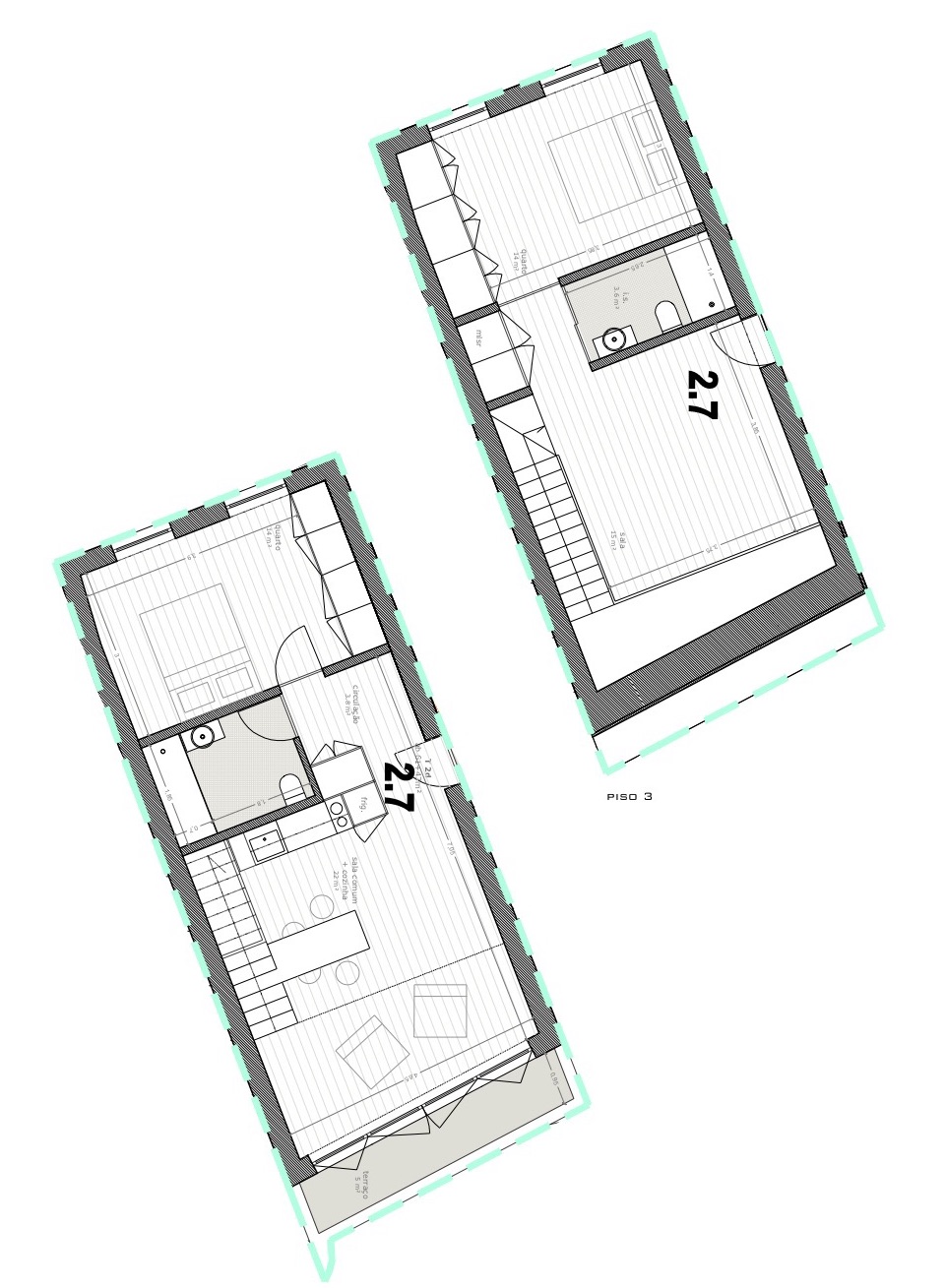
Apartamento T2 Duplex
Apartamento T2 Duplex em construção na zona da Beira-Mar, junto à Igreja da Vera Cruz, Aveiro.
1º Andar composto por hall de entrada, cozinha e sala em Open Space com varanda, W.C. completo e quarto com roupeiros embutidos.
2º Andar composto por quarto com roupeiros embutidos, W.C. completo e uma segunda sala em mezzanine com abertura para a sala inferior.
Duas entradas independentes. Completamente equipado e com lugar de garagem.